HOTLINE: 0985727353

Biệt thự mái Nhật 2 tầng – Hưng Yên

Ngôi biệt thự mái Nhật 2 tầng của gia đình chú Thắng là một thiết kế tiêu biểu cho phong cách nhà đẹp tối giản nhưng vẫn sang trọng, tiện nghi. Với diện tích mỗi tầng 159m², công trình mang đến không gian sống hiện đại, gần gũi thiên nhiên và cân bằng giữa sinh hoạt chung – riêng tư.
  • Tên dự án : Biệt thự mái Nhật 2 tầng – Hưng Yên
  • Địa chỉ:
  • Thời gian:
  • Khách Hàng :

Chi tiết dự án

Ngôi biệt thự mái Nhật 2 tầng của gia đình chú Thắng là minh chứng rõ ràng cho một thiết kế nhà đẹp: vừa tối giản, vừa tinh tế, vừa tiện nghi cho sinh hoạt gia đình. Với diện tích 159m² mỗi tầng, công trình không chỉ hiện đại trong kiến trúc mà còn hợp lý trong bố trí công năng.

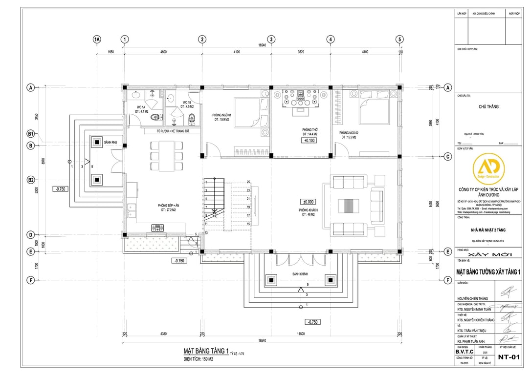
Tầng 1 rộng 159m² mở ra không gian thoáng đãng. Phòng khách kết nối liền mạch với bếp và phòng ăn, tạo sự gần gũi trong sinh hoạt hàng ngày. Ở trung tâm là phòng thờ trang nghiêm, hai bên là 2 phòng ngủ ấm cúng, mang lại sự riêng tư. Ngoài ra, tầng này còn có nhà vệ sinh và sảnh phụ tiện lợi.

Tầng 2 tiếp nối sự ấm cúng với phòng sinh hoạt chung ở giữa – nơi gia đình quây quần, trò chuyện. Bao quanh là 3 phòng ngủ thoáng sáng, mỗi phòng đều đón gió và ánh sáng tự nhiên. Ban công trước và sau mang lại sự mát mẻ, còn không gian đa năng linh hoạt giúp gia chủ dễ dàng biến thành phòng học, phòng làm việc hoặc khu vui chơi.

Phối cảnh ngoại thất biệt thự mái Nhật 2 tầng

Nhìn từ mặt tiền, ngôi nhà nổi bật với hệ mái Nhật thanh thoát. Mái dốc nhẹ vừa đẹp, vừa thoát nước nhanh và chống nóng tốt. Gam màu trắng – xám tạo cảm giác tinh giản, nhưng vẫn giữ sự sang trọng và bền vững theo thời gian.

Từ góc trái, các khối giật cấp tạo nên sự chắc chắn mà không hề nặng nề. Trần ốp giả gỗ kết hợp ánh sáng vàng âm trần làm hiên nhà buổi tối trở nên ấm áp, gần gũi và nổi bật.


Ban công chạy dài theo mặt tiền, nơi gia chủ có thể đặt chậu hoa, cây xanh hay bàn ghế nghỉ ngơi. Lan can thanh thoát tôn thêm nét nhẹ nhàng, đồng thời cho phép gió và ánh sáng len lỏi vào không gian bên trong.

Cây xanh xuất hiện từ sân trước đến ban công, mang lại sức sống và sự trong lành. Giữa nền trắng tinh khôi, sắc xanh trở thành điểm nhấn khiến ngôi nhà càng hài hòa và dễ chịu.

Khoảng ban công đủ rộng để gia chủ đặt bàn trà, đọc sách hay ngắm cảnh. Trong làn gió mát tự nhiên, không gian này trở thành góc bình yên đầy thư thái.

Cửa nhôm kính lớn giúp ánh sáng tự nhiên tràn ngập khắp phòng. Từ bên trong, gia chủ có thể phóng tầm nhìn ra sân vườn, cảm nhận sự gắn kết giữa nội thất và thiên nhiên – một điểm cộng lớn cho phong cách không gian tối giản tinh tế.

Kết luận – Tổ ấm cho phong cách sống tinh giản

Ngôi biệt thự mái Nhật 2 tầng của gia đình chú Thắng là sự dung hòa tuyệt vời giữa ngoại thất thanh thoát, công năng khoa học và không gian gần gũi thiên nhiên. Đây là mẫu thiết kế nhà đẹp dành cho những gia đình yêu thích sự tối giản nhưng vẫn muốn giữ sự sang trọng và tiện nghi.

👉 Nếu bạn đang tìm kiếm một tổ ấm hiện đại, tiện nghi và bền vững, hãy liên hệ ngay với Nhà Đẹp Ánh Dương để được tư vấn và hiện thực hóa ngôi nhà mơ ước của mình.

 

0985727353
challenges-icon chat-active-icon chat-active-icon chat-active-icon